Étude de faisabilité par un architecte DPLG à Bordeaux
Étude de faisabilité par un architecte DPLG à Bordeaux
Étude de faisabilité par un architecte DPLG à Bordeaux
Étude de faisabilité par un architecte DPLG à Bordeaux
Étude de faisabilité par un architecte DPLG à Bordeaux
Étude de faisabilité par un architecte DPLG à Bordeaux
Étude de faisabilité par un architecte DPLG à Bordeaux
Étude de faisabilité par un architecte DPLG à Bordeaux
Agnès Malka Barokel > Prestations > pourquoi faire appel à un architecte pour réaliser une étude de faisabilité ?

pourquoi faire appel à un architecte pour réaliser une étude de faisabilité ?

Faire appel à un architecte pour réaliser une étude de faisabilité, c'est se donner la possibilité d'étudier un projet de construction, de rénovation, d'extension ou de surélévation avant d'envisager l'achat définitif ou de prendre la décision de faire des travaux.


C'est la possibilité sans confier une mission complète de maitrise d'œuvre, de réaliser une pré-étude afin de vérifier sa faisabilité dans sa globalité.
Nous proposons de vous accompagner à une visite chez l'actuel propriétaire afin de valider la faisabilité de votre projet, tant au niveau des règles à construire, que l'adéquation avec votre budget. 
C'est s'assurer des possibilités par rapport aux règles d'urbanisme, le PLU
C'est contrôler que le budget prévisionnel est adapté au projet.
C'est accompagner nos clients particuliers et professionnels dès l'amorce du projet en réalisant une esquisse et un montant estimé des travaux.

Le Cabinet d'Architecture Agnès Malka Barokel vous accompagne depuis 1996 sur l'ensemble de vos projets de construction, de rénovation et de surélévation à Bordeaux, mais également sur le bassin d'Arcachon et dans toute la Nouvelle Aquitaine. 

Le montant de cette prestation est forfaitaire et sera défini ensemble après discussion de vos besoins.

 

N'hésitez pas à nous contacter pour tout renseignement complémentaire.

 

Voici nos coordonnées :
Cabinet D'Architecture AGNES MALKA BAROKEL:
adresse : 13 RUE JULES STEEG 33800 BORDEAUX
téléphone : 05 40 25 04 29
Titre court étude de faisabilité
À découvrir
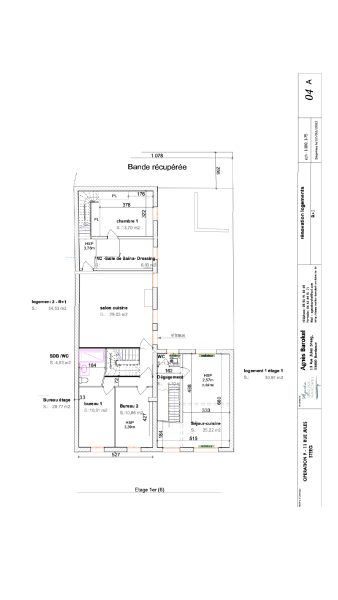
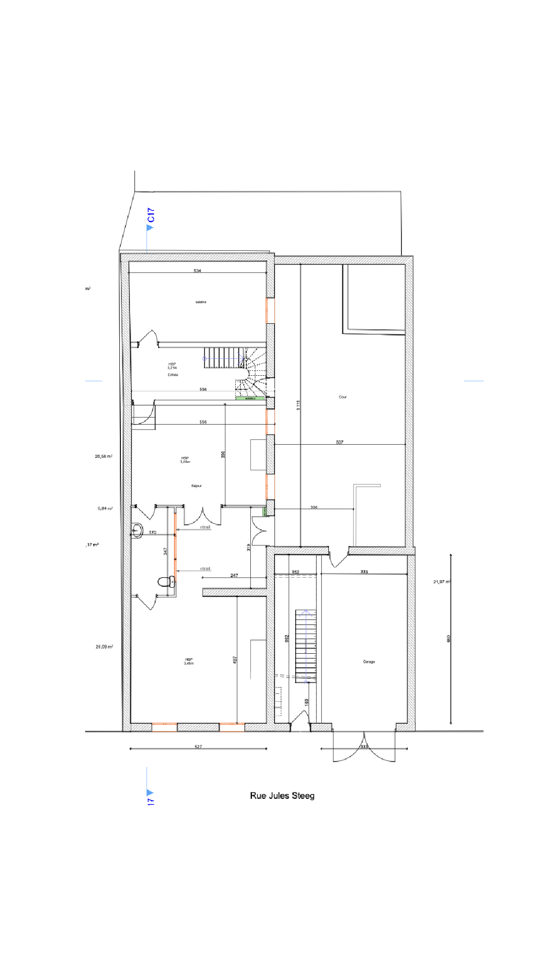
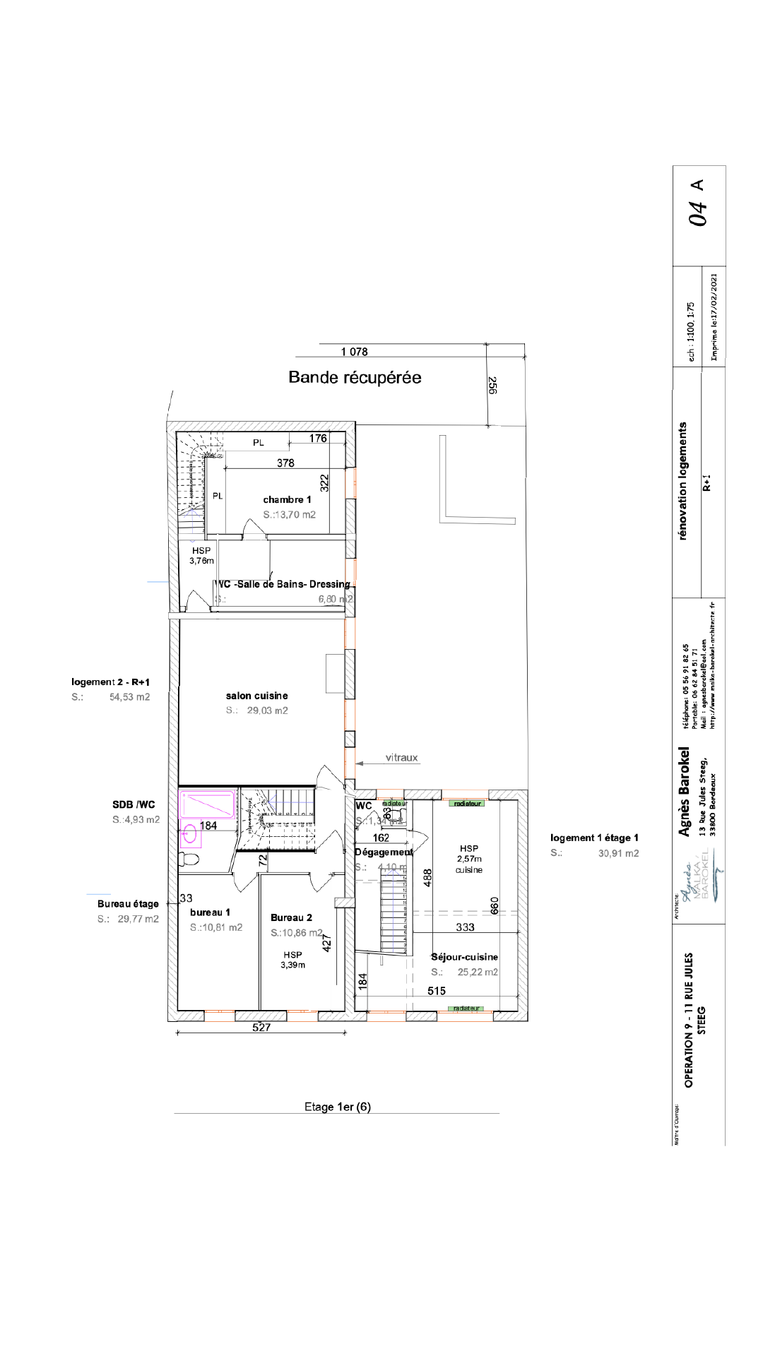
architecte pour étude de faisabilité logements collectifs à Bègles proche de Bordeaux et partout en gironde
01

De la faisabilité à la livraison finale de vos travaux de construction et de rénovation à Bordeaux et partout en Gironde

L'agence d'Agnès Malka Barokel, architecte DPLG et d'intérieur, vous accompagne depuis 1996 pendant toutes les étapes de la construction : depuis l'esquisse et l'avant projet jusqu'à la réception des travaux. Ses compétences en architecture d'intérieur sont appréciées pour l'assistance aux choix des matériaux, des coloris et l'aménagement intérieur.
Une question, une demande de devis ?
Nous écrire
Les champs indiqués par un astérisque (*) sont obligatoires
architecte à Bordeaux pour projet de construction et rénovation
Architecte pour extension d'une échoppe Bordelaise 33
Architecte Cap Ferret : Architecte et décoratrice d'intérieur pour professionnels et particuliers Gironde
 Faire appel à un Architecte pour la Rénovation d'une villa Arcachonnaise
Architecte pour Rénovation complète et extension d’une maison familiale à Bordeaux  quartier Nansouty
Architecte pour Rénovation complète et extension d’une maison familiale à Bordeaux